帐号
注册
密码
登录
关闭
安全选项
安全提问(未设置请忽略)
母亲的名字
爷爷的名字
父亲出生的城市
您其中一位老师的名字
您个人计算机的型号
您最喜欢的餐馆名称
驾驶执照的最后四位数字
找回密码
记住我
回首页
新闻
芝加哥黄页
会员
论坛区
搜索
帮助
快速搜索
帖子标题
作者
版块
芝加哥社区
»
芝加哥网市
»
租房
» Lake View 高层公寓2B/1B出租大卧室
芝加哥网市
汽车
家用电器
奇虎贷款
电脑、配件
家具
租房
招聘
保姆、家政
其它
兴趣
百乐芝加哥
芝加哥美食
鱼美人(钓鱼)
芝城影社
交流
留学时代
身份 绿卡 入籍
求助、帮助、分享
侨社热点
山水都市
EB-5投资移民
返回列表
查看:
2698
|
回复:
0
Lake View 高层公寓2B/1B出租大卧室
[复制链接]
发送短消息
UID
9880
精华
0
查看公共资料
搜索帖子
ygmuleo
组别
高级会员
生日
帖子
13
积分
678
性别
注册时间
2016-01-18
1
#
字体大小:
t
T
发表于
2019-03-31 11:59
|
只看楼主
银光图片
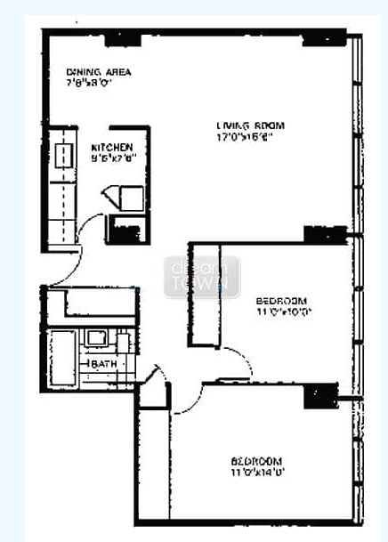
# Lake View 地区高层公寓2B/1B出租大卧室
具体位置:
在
3950 N Lake Shore Drive. Chicago, IL,60613
公寓情况:两
室一卫,湖景高层,坐北朝南,客厅窗外蔚蓝的一片
Lake Michigan, Montrose Harbor & golf course,
卧室朝南,采光好。
公寓可以养猫,不能养狗。
大卧室从4月1日开始出租,大卧室房租900,
包括全部的Utility (水费,电费,气
,
取暖,空调和网费);
卧室有大床,书桌和椅子,可以拎包入住
(最好长租一年,短租可以商量)。
小卧室目前住的是UIC的女生,所以希望找女生入住。
客厅很大,大楼有
24
小时安保,免费的健身房,
楼内有洗衣房和干洗店
,
有garage
parking ($165/mo)
,楼外可以使用
street parking,
大楼外面的公园也有免费的停车位
(
步行到大楼
5
分钟
)
。
全套的
厨房用具。
交通便利:楼门口即有
146
、
80
、
135
、
148
路公交车,到
市中心很方便。步行至红线(及紫线)地铁
Sheridan10
分钟。
有意者请联系:858-652-8492
,微信:
leo88388986,
或发邮件至
lmu3950@gmail.com
,
租期从
2019
年4
月1日开始。长租优先考虑,
希望找女生,干净整洁,无不良嗜好
照片如下: 大楼, 厨房, 客厅, 大卧室,小卧室,卫生间,楼顶平台
3950 NLD floor plan.png
(79.76 K)
3/31/2019 11:58:43 AM
08981644_2.jpg
(135.24 K)
3/31/2019 11:58:43 AM
kitchen room.jpg
(72.51 K)
3/31/2019 11:58:43 AM
living room 3.jpg
(43.97 K)
3/31/2019 11:58:43 AM
bedrrom 1.jpg
(59.79 K)
3/31/2019 11:58:43 AM
bedroom 2.jpg
(57.89 K)
3/31/2019 11:58:43 AM
08981644_7_2.jpg
(70.32 K)
3/31/2019 11:58:43 AM
the view from sun deck.jpg
(94.50 K)
3/31/2019 11:58:43 AM
分享
转发
TOP
上一主题
|
下一主题
返回列表
高级编辑器
B
Color
Image
Link
Quote
Code
Smilies
默认表情
你需要登录后才可以发帖
登录
|
注册
发表回复
查看背景广告
隐藏
发新主题
芝加哥网市
汽车
家用电器
奇虎贷款
电脑、配件
家具
租房
招聘
保姆、家政
其它
兴趣
百乐芝加哥
芝加哥美食
鱼美人(钓鱼)
芝城影社
交流
留学时代
身份 绿卡 入籍
求助、帮助、分享
侨社热点
山水都市
EB-5投资移民
浏览过的版块
招聘
鱼美人(钓鱼)
TOP
设置头像
个人资料
更改密码
用户组
收藏夹
积分
Default