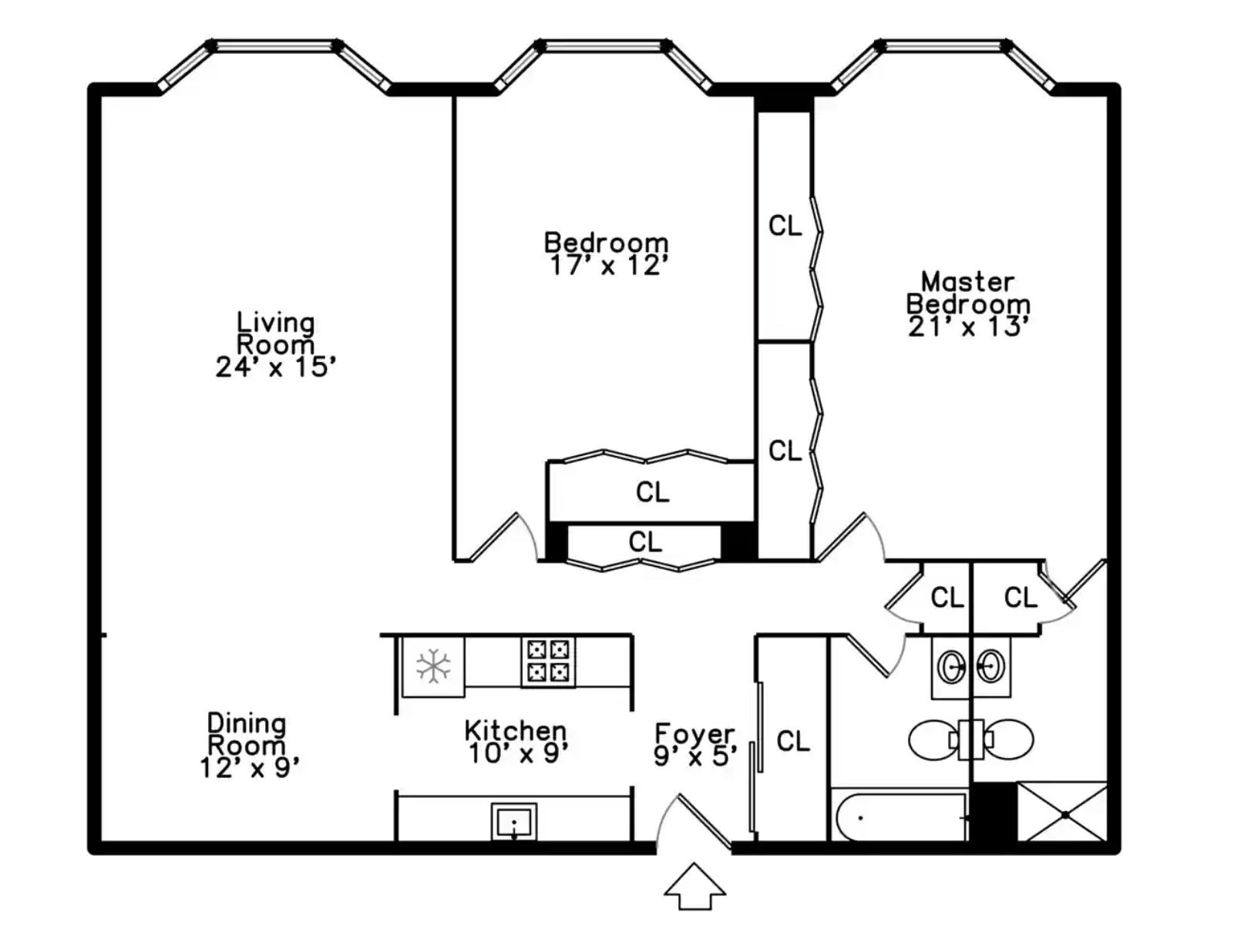
房间明亮 朝南
独立空调 自己控制温度
室内停车位 出入电梯
公共洗衣房 烘干机
小区安全 附近9分高中
走路5min到forest preserve
90 94交界处,5分钟上高速
开车30min 到芝加哥downtown/Evanston/Naperville/Buffalo grove/Elgin
开车10min 到Chicago fashion outlet
附近有超市Mariano’s/Target/Wholefood/Hmart
可拎包入住 可升降桌子 宜家床垫 跑步机
短信联系510 377 8256





