Discuz!NT|BBS|论坛

注册

 

发新话题 回复该主题

【转租】UIC University Village 环境优雅房子现在转租1050/月 [复制链接]

1#
银光图片
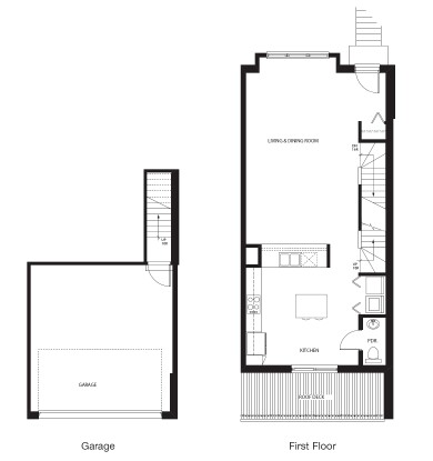
房屋地址: 837 w village ct 1 层 一个full living room ,半个bathroom, 一个full kitchen room, 一个阳台
2层,2个 bedroom 一大一小,一个full bathroom
3层,天台
附属半个车库
现在转租 每月1050(包含水电费), 押金3000,只需要自己掏网费。
租约从2015年1月,到2015年7月底
PS(另外可以三人合住出租客厅,具体可详谈)
家具齐全可拎包入住,内有洗衣机,
周边环境优雅,交通方便,出门既有8路。步行至UIC校区只要10分钟,欢迎随时看房


             包 电话312-493-3978,QQ:710852308(注明租房) dantebl0608@gmail.com
              陈 电话312-358-9980,  QQ:  71007817 (注明租房)  email:71007817@qq.com
IMG_0541.JPG (, 下载次数:0)

(12/29/2014 8:50:11 PM 上传)

EXIF信息

IMG_0541.JPG

IMG_0542.JPG (, 下载次数:0)

(12/29/2014 8:50:11 PM 上传)

EXIF信息

IMG_0542.JPG

分享 转发
TOP
2#

现在转租 每月2100(包含水电费), 押金3000,只需要自己掏网费。
租约从2015年1月,到2015年7月底
PS(现在已经有两个男士愿意合租,现在700转租一个卧室)
]1XM87)GBEEP814@]6TX[5D.jpg (, 下载次数:0)

(1/7/2015 6:52:02 PM 上传)

]1XM87)GBEEP814@]6TX[5D.jpg

IMG_0541.JPG (, 下载次数:0)

(1/7/2015 6:52:02 PM 上传)

EXIF信息

IMG_0541.JPG

IMG_0542.JPG (, 下载次数:0)

(1/7/2015 6:52:02 PM 上传)

EXIF信息

IMG_0542.JPG

U$FHQN%R({G{E6ATU28F1%A.jpg (, 下载次数:0)

(1/7/2015 6:52:02 PM 上传)

U$FHQN%R({G{E6ATU28F1%A.jpg

TOP
3#

顶起来
TOP
4#

家具全送,欢迎随时看房
TOP
5#

欢迎大家随时看房
TOP
发新话题 回复该主题