帐号
注册
密码
登录
关闭
安全选项
安全提问(未设置请忽略)
母亲的名字
爷爷的名字
父亲出生的城市
您其中一位老师的名字
您个人计算机的型号
您最喜欢的餐馆名称
驾驶执照的最后四位数字
找回密码
记住我
回首页
新闻
芝加哥黄页
会员
论坛区
搜索
帮助
快速搜索
帖子标题
作者
版块
芝加哥社区
»
芝加哥网市
»
租房
» loop红线附近公寓转租送所有家具!直降300只需1150!近depual,UIC,SAIC
芝加哥网市
汽车
家用电器
奇虎贷款
电脑、配件
家具
租房
招聘
保姆、家政
其它
兴趣
百乐芝加哥
芝加哥美食
鱼美人(钓鱼)
芝城影社
交流
留学时代
身份 绿卡 入籍
求助、帮助、分享
侨社热点
山水都市
EB-5投资移民
返回列表
查看:
2448
|
回复:
2
loop红线附近公寓转租送所有家具!直降300只需1150!近depual,UIC,SAIC
[复制链接]
发送短消息
UID
14027
精华
0
查看公共资料
搜索帖子
harkao
组别
新手上路
生日
帖子
3
积分
38
性别
注册时间
2017-10-16
1
#
字体大小:
t
T
发表于
2017-10-16 17:45
|
只看楼主
银光图片
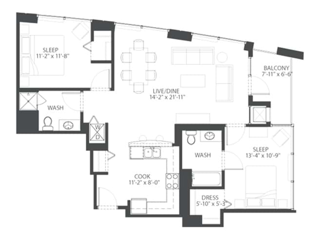
loop/south loop好房转租!位于红线Harrison附近的2B2B整个房子面积105平米,
转租主卧,因主次卧分别位于客厅两端且卫生间各自独立,私密性极好,男女皆可~
直接与leasing office签合同,
送所有家具!包括king size床+床垫,书桌,台灯,椅子,懒人沙发,落地灯,拎包入住!
时间从11月底到明年4月份,到期后可续租,我房租交到11月底,11月22号开始可提前免费入住!
主卧包含独立卫生间及宽敞步入式衣帽间,一整面墙的落地窗
;客厅宽敞视野无敌,带阳台;厨房也很宽敞,抽油烟机微波炉烤箱洗碗机一应俱全,带洗衣机烘干机. 公寓有24小时doorman,免费gym,学习室会议室及屋顶露台,学习室24小时供应免费咖啡、热可可、热茶,还有免费打印机可扫描复印打印十分方便。公寓位于900 S Clark,地理位置优越,到loop步行只需十几分钟,5分钟到红线Harrison站,7分钟到蓝线LaSalle站,8分钟到棕/橙/粉/紫LaSalle/Van Buren站,距中国城红线两站,到DePaul loop校区步行10+分钟或红线一站。生活购物也十分方便,离target两个block,稍远一点还有whole foods,jewel和缺德舅,
港超开车只要几分钟。安全街区,附近餐厅、bar众多,晚上也很热闹。公寓带室内车位,可与公寓签租车位,也可不租车位。由于个人原因需要休学,现挥泪转租!目前次卧住着一个刚毕业opt妹子,为人开朗好相处,比较少在客厅活动,且常常开车带我逛港超。
原来价格是1450除电网外其他utility全含,现在我每个月给你补贴300你只用出1150~价格还可再谈~~
手机拍摄照片无法展示房间真实情况欢迎前来实地看房~~~请联系微信
harako520
或者电话
773-524-9275
P.S.不知道为啥图片传不上去,想看照片的欢迎加我微信~~
plan.jpg
(20.72 K)
11/1/2017 8:07:14 PM
分享
转发
TOP
发送短消息
UID
14027
精华
0
查看公共资料
搜索帖子
harkao
组别
新手上路
生日
帖子
3
积分
38
性别
注册时间
2017-10-16
2
#
字体大小:
t
T
发表于
2017-10-29 22:58
|
只看楼主
up up up up欢迎大胆杀价!
TOP
发送短消息
UID
14027
精华
0
查看公共资料
搜索帖子
harkao
组别
新手上路
生日
帖子
3
积分
38
性别
注册时间
2017-10-16
3
#
字体大小:
t
T
发表于
2017-11-01 20:09
|
只看楼主
up 一个~
TOP
上一主题
|
下一主题
返回列表
高级编辑器
B
Color
Image
Link
Quote
Code
Smilies
默认表情
你需要登录后才可以发帖
登录
|
注册
发表回复
查看背景广告
隐藏
发新主题
芝加哥网市
汽车
家用电器
奇虎贷款
电脑、配件
家具
租房
招聘
保姆、家政
其它
兴趣
百乐芝加哥
芝加哥美食
鱼美人(钓鱼)
芝城影社
交流
留学时代
身份 绿卡 入籍
求助、帮助、分享
侨社热点
山水都市
EB-5投资移民
浏览过的版块
鱼美人(钓鱼)
招聘
TOP
设置头像
个人资料
更改密码
用户组
收藏夹
积分
Default